For Sale

$899,900

731 PLOUGHMAN PLACE , Ottawa, Ontario K2S3C5

1 Beds 2 Baths

Remarks

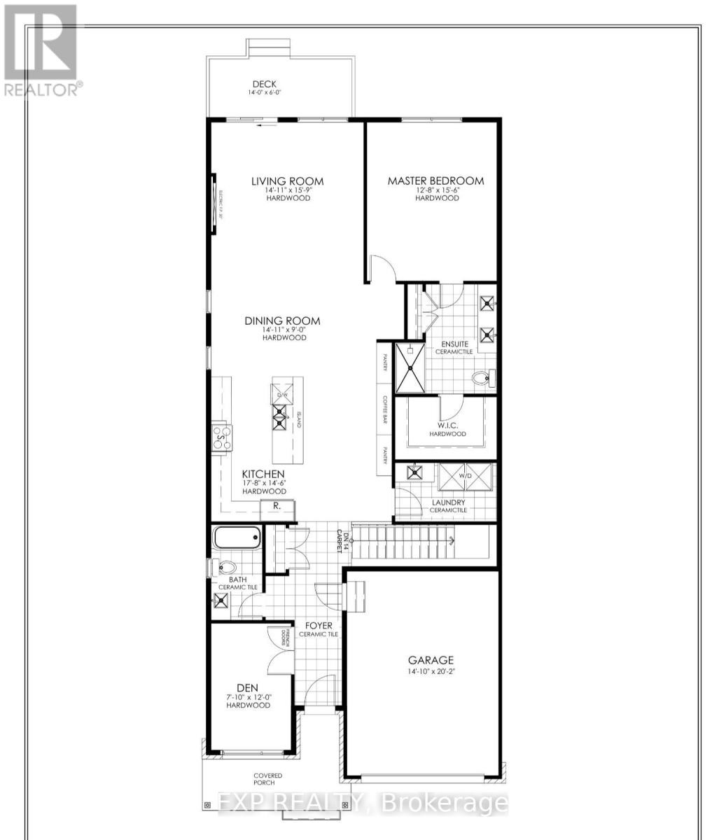
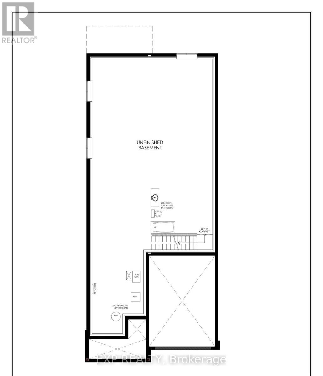
Brand-New Bungalow in Shea Village - Ready January 2026! Be the first to live in this beautiful, Patten Homes designed 1+den (or 2-bedroom), 2-bath detached bungalow featuring 9-foot ceilings, an electric fireplace, central air, and central vac rough in. The oversized single-car garage adds convenience and storage space. Located in sought-after Shea Village, where thoughtful design meets modern living. Enjoy a walkable community next to the Cardel Recreation Complex, close to schools, shopping, parks, and Stittsville's vibrant downtown. Experience small-town charm with easy access to Kanata's tech hub and major highways.A perfect opportunity to own a brand-new home in a growing, connected neighbourhood! (id:7526)

Property Summary

  • Neighbourhood: 8203 - Stittsville (South)
  • Lot Frontage: 35.0 Feet
  • Lot Depth: 100.0 Feet
  • Lot Size: 35 x 100 FT
  • No. of Parking Spaces: 2
  • Bedrooms: 1
  • Bathrooms (Total): 2

Property Features:

  • Equipment Type:
    Water Heater
  • Ownership Type:
    Freehold
  • Parking Type:
    Attached garage , Garage
  • Property Type:
    Single Family
  • Rental Equipment Type:
    Water Heater
  • Sewer:
    Sanitary sewer

Building Features:

  • Amenities:
    []
  • Appliances:
    Central Vacuum
  • Architectural Style:
    Bungalow
  • Basement Development:
    Unfinished
  • Basement Type:
    Full
  • Building Type:
    House
  • Construction Style - Attachment:
    Detached
  • Cooling Type:
    Central air conditioning
  • Exterior Finish:
    Stone
  • Foundation Type:
    Concrete
  • Heating Fuel:
    Natural gas
  • Heating Type:
    Forced air

Listing courtesy of: 

EXP REALTY

Lifestyle
Neighbourhood Info

Get More Info

Book a tour